Tahokovové bandrastrové podhledy · Durlum RHOMBOS bandrastrové
Základní typy
S5 – lineární rastr
Systém s lineárními bandrastry
Variabilní členění prostoru
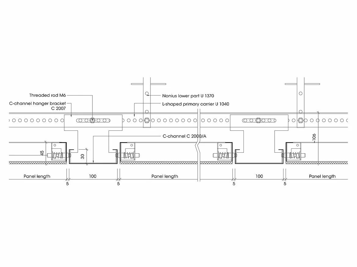
S5 RHOMBOS je lineární systém s viditelnou nosnou konstrukcí.
Kazety jsou ukládány na viditelný nosný profil C-bandrastr. V případě potřeby lze kazety snadno vyjmout a kdykoli opět zavěsit zpět.
Lineární bandrastry umožňují snadnou změnu dispozice prostoru.
S5.1 – křížový rastr
Systém s podélnými a příčnými bandrastry
Viditelná podkonstrukce
Více možností ukotvení dělících příček
S5.1 1RHOMBOS je lineární systém, kde nosným profily (C-bandrastrem) tvoří viditelný křížový rastr
Kazety jsou ukládány kratsí stranou na C-bandrastr. V případě potřeby lze kazety snadno vyjmout a kdykoli opět zavěsit zpět.
Tento systém s podélnými a příčnými profily je ideální pro kancelářské budovy. Prostor lze snadno dělit mnoha způsoby a bandrastry slouží jako opora pro upevnění dělících příček.
S5.4 K-BR – kazety sklopitelné
Systém s lineárními bandrastry
Snadná manipulace a jednoduché revize
Ideální pro chladící systémy a po podhledové systémy odolné proti působení tlaku
S5.7 KS-BR RHOMBOS je sklopný a posuvný lineární systém s viditelným podélným nosným profilem (C-bandrastrem)
Kazety jsou opatřeny robustním mechanismem se šrouby a zámky. Tento systém umožňuje velice snadné revize a je proto ideální v kombinace s chladicími stropy.
Viditelná spodní nosná konstrukce a podélně vedené lineární bandrastry umožňují snadnou změnu dispozic prostoru – dělicí příčky lze totiž kdykoliv dodatečně ukotvit přímo k nosným profilům.
S5.6 FH – kazety svěsitelné
Systém s lineárními bandrastry
Kazety lze svěsit a posouvat
Ideální pro chladící systémy
S5.6 FH RHOMBOS je sklopný a posuvný lineární systém s C-bandrastry.
Kazety je možné sklopit a zavěsit pomocí zářezů na příčné hraně. Tento systém také umožňuje posun kazet v C-bandrastru jako v kolejnici.
Viditelná nosná konstrukce
umožňuje snadné dodatečné rozdělení místnosti, při kterém se dělící příčky podle potřeby připevňují přímo k C-bandrastrům
S5.7 KS-BR – kazety sklopné a posuvné
Systém s lineárními bandrastry
Snadná manipulace a jednoduché revize
Ideální pro chladící systémy
S5.7 KS-BR RHOMBOS je systém umožňující sklopení a posuv kazet.
Kazety jsou opatřeny robustním mechanismem se šrouby a zámky. Tento systém umožňuje velice snadné revize bez nutnosti úplného sundání kazet. Proto je ideální v kombinace s chladicími stropy.
Viditelná spodní nosná konstrukce a podélně vedené lineární bandrastry umožňují snadnou změnu dispozic prostoru – dělicí příčky lze totiž kdykoliv dodatečně ukotvit přímo k nosným profilům.
základní specifikace
- Viditelná nosná konstrukce tvořená podélnými C-bandrastry
- Varianta s křížovými bandrastry pro větší flexibilitu prostoru
- Umožňuje snadné a variabilní členění prostoru
- Pro maximální flexibilitu a snadný přístup do podhledu lze systém doplnit o prvky umožňující svěšení / posuv kazet
- Příčky lze jednoduše ukotvit přímo k C-bandrastrům přesně tam, kde je zrovna potřeba
Technické parametry:
- Materiál: pozinkovaná ocel, hliník na vyžádání
- Typ tahokovu: M110, M260, M400, jiné typy tahokovu na vyžádání
- Typy kazet: V1, V3, V4, V6, V7. Ostatní typy na vyžádání.
- Zavěšení: závitové tyče nebo závěs typu nonius
- Požární odolnost: A2-s1, d0 dle EN13501-01 (nehořlavý)
- Povrchová úprava: práškové lakování
- Standardní barvy: stříbrná metalíza (podobná RAL 9006), bílá (RAL 9016 matná DUROPLAN typ 1), brilantní chrom s bezbarvým lakem. Jiné barvy na vyžádání.
- Akustické vlastnosti: zvuková pohltivost s černým akustickým rounem (αw = 0,45; NRC = 0,40).

TYPY podhledů
S5 RHOMBOS lineární rastr:
S5.1 RHOMBOS křížový rastr:
S5.4 K-BR RHOMBOS sklopitelné kazety:
S5.6 FH RHOMBOS svěsitelné kazety:
Specifikace tahokovu
Specifikace tahokovu:
- Délka oka: Rozměr, který určuje délku každého otvoru v síti. Délka otvorů ovlivňuje propustnost a celkový vzhled panelu.
- Šířka oka: Svislá vzdálenost od horní a dolní části otvoru ve tvaru diamantu. Šířka otvorů ovlivňuje propustnost a celkový vzhled panelu.
- Posuv (šířka můstku): Tento rozměr se vztahuje k šířce kovových pramenů, které tvoří síť. Šířka kovových pramenů tvoří stěny každé buňky. Ovlivňuje pevnost a trvanlivost sítě. Menší posuv znamená hustší mřížku
- Tloušťka plechu: Jedná se o tloušťku původního kovového plechu, ze kterého je síťovina vyrobena. Měří se kolmo k rovině sítě.
- Tloušťka mřížky: Udávají někteří výrobci. Označuje tl. vyrobeného tahokovu. Tento rozměr není ale nikterak zaručení. Jedná se většinou o přibližný údaj.
TYPY standardních tahokovů
M110_1,2
16 × 8 × 1,5 × 1,2
Propustnost: 62,5 %
- Délka oka: 16 mm
- Šířka oka: 8 mm
- Posuv: 1,5 mm
- Tloušťka kovu: 1,2 mm
- Tloušťka tahokovu: ~ 3 mm
- Typy kazet: V1, V3, V4, V6, V7
M210
25 × 16 × 1,5 × 1,5
Propustnost: 81,2 %
- Délka oka: 25 mm
- Šířka oka: 16 mm
- Posuv: 1,5 mm
- Tloušťka kovu: 1,5 mm
- Tloušťka tahokovu: ~ 3 mm
- Typy kazet: V1, V3, V4, V6, V7
M260_1,2
28 × 12 × 2,0 × 1,2
Propustnost: 66,6 %
- Délka oka: 28 mm
- Šířka oka: 12 mm
- Posuv: 2,0 mm
- Tloušťka kovu: 1,2 mm
- Tloušťka tahokovu: ~ 4 mm
- Typy kazet: V1, V3, V4, V6, V7
M430
40 × 20 × 2,5 × 1,5
Propustnost: 75 %
- Délka oka: 43 mm
- Šířka oka: 20 mm
- Posuv: 2,5 mm
- Tloušťka kovu: 1,5 mm
- Tloušťka tahokovu: ~ 5 mm
- Typy kazet: V1, V3, V4, V6, V7
TYPY kazet DURLUM MESH
TYP V1
TAHOKOV PŘIVAŘENÝ K RÁMU
Rám je přivařen na tupo k laserem vyřezanému panelu z tahokovu.

TYP V2
TAHOKOV PŘIVAŘENÝ K RÁMU
Rám je přivařen k laserem vyřezanému
a ohýbanému panelu z tahokovu.

TYP V3 BASIC
TAHOKOV PŘIVAŘENÝ K RÁMU
Rám je přivařen na tupo k na míru vyrobenému panelu z tahokovu.

TYP V4
PŘIVAŘENÝ RÁM
Rám je přivařen na tupo k laserem vyřezanému panelu z tahokovu.

TYP V5
OHNUTÝ BEZRÁMOVÝ TAHOKOV
Kazety mají zpevněné hrany díky patentovaného prolisu.
Kazety speciálně pro systém S1 RHOMBOS.

TYP V6
TAHOKOV S VIDITELNÝM RÁMEM
Panel z tahokovu je vložen do obvodového rámu a přivařen.

TYP V7
TAHOKOV S RÁMEM
Panel z tahokovu je přiložen ze spodní strany obvodového rámu a přivařen.













